Bilocale in affitto

Milano, Piazza Sempione - Arco Della Pace
€ 2.250 / mese
2 locali 2 locali
90 Mq 90 Mq
1 bagno 1 bagno

Bilocale in affitto

Milano, Piazza Sempione - Arco Della Pace

Descrizione annuncio

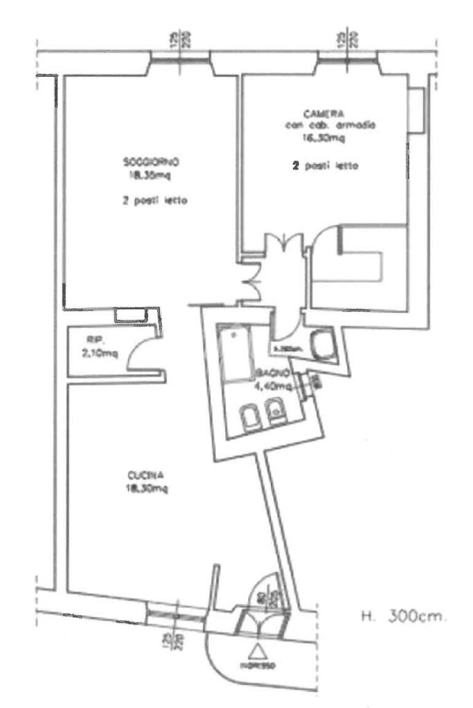
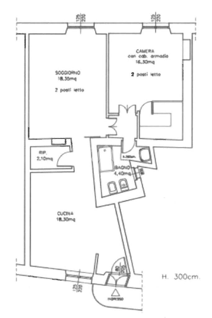
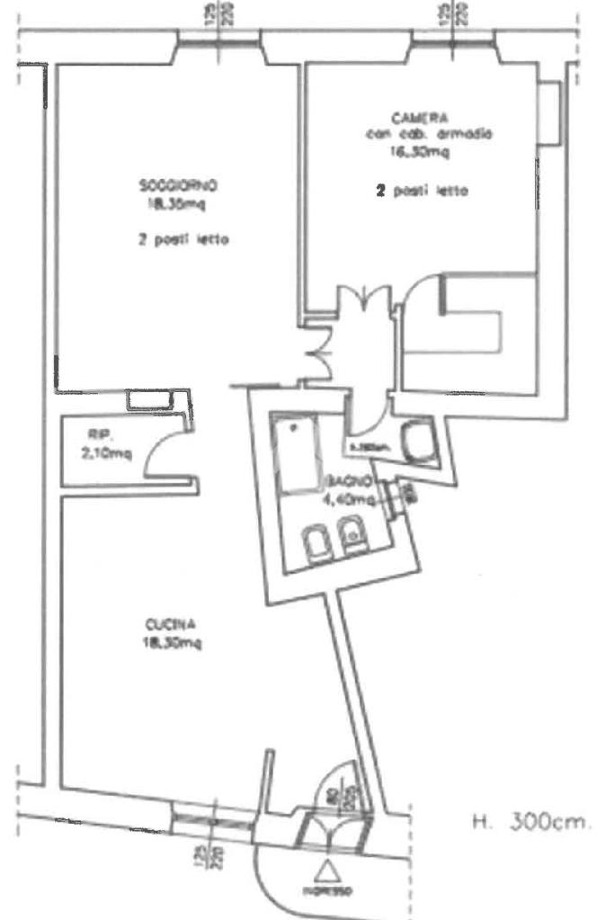
Nel cuore di Milano, nella rinomata zona Arco della Pace, proponiamo in locazione un ampio bilocale di 90 mq completamente arredato, situato al terzo piano di un elegante stabile d'epoca con escensore e servizio di portineria. L'appartamento,inoltre, gode di una piacevole e rilassante vista sul parco Sempione. Internamente la soluzione è composta da un'ampia cucina abitabile, soggiorno, camera da letto con cabina armadio, ripostiglio con zona lavanderia e servizio finestrato. Riscaldamento autonomo. Contratto richiesto 3+2, canone pari a 2.250 €/mese, più 250€/mese di spese condominiali.

A due passi dall'Arena Civica di Milano e dall'Arco della Pace, la nostra Agenzia Immobiliare è diventata un punto di riferimento per coloro che vogliono acquistare o vendere casa nel centro di Milano. La zona è ben collegata dai mezzi pubblici di superficie e dalle metropolitane, MM2 Moscova, MM5Gerusalemme e Monumentale; caratterizzata dei numerosi servizi offerti: scuole, ospedali, farmacie, uffici postali, banche, centri sportivi, supermercati e punti di interesse culturale. Uno scorcio della vecchia Milano rinomato per la Movida Milanese grazie alle sue isole pedonali di Corso Sempione, Paolo Sarpi e Corso Garibaldi che fanno da Cornice al Parco Sempione e al Castello Sforzesco.

Mostra tutto

Nelle vicinanze

Trasporto pubblico Trasporto pubblico
Lanza
Lanza
880 m
Moscova
Moscova
890 m
Milano Nord Cadorna
Milano Nord Cadorna
900 m
Milano Porta Garibaldi passante
Milano Porta Garibaldi passante
1,4 Km
Arco della Pace
Arco della Pace
120 m
Ricariche auto elettriche Ricariche auto elettriche
Green Park
690 m
AUTORIMESSA SEMPIONE 76
840 m
Hotel Viu Milano
850 m
A2A Cadorna
890 m
A2A Volta
940 m
Scuole Scuole
Istituto Daniele Marignoni Marco Polo
200 m
Scuola Superiore d'Arte Applicata del Castello Sforzesco
380 m
Scuola Primaria Piero Moscati Bianca Maria Sforza
460 m
Scuola Secondaria di Primo Grado Panzini
510 m
Scuola Primaria Giusti
520 m
Farmacia Farmacia
Società Cooperativa Farmaceutica
80 m
Farmacia Sempione
180 m
Canonica
320 m
Farmacia
330 m
Mariscotti
560 m
Ospedali Ospedali
Poliambulatorio Sassi
1,1 Km
Ospedale dei Bambini "Vittore Buzzi"
1,2 Km
Clinica Columbus
1,4 Km
Ospedale San Giuseppe
1,4 Km
Fatebenefratelli
1,4 Km
Supermercati Supermercati
Kathay
390 m
Auchan
430 m
Punto Simply
460 m
Carrefour Market
630 m
Naturasì
840 m
Negozi Negozi
Lirecento
60 m
Carrefour Express
180 m
Negozi
250 m
Canadian Outlet
320 m
To.Market
340 m
Bar Bar
Living
20 m
Deseo
100 m
Parco Milano
140 m
Cream Lounge
160 m
Pils Pub
170 m
Ristoranti Ristoranti
Pisco
30 m
Okonomiyaki
60 m
Rebetiko
80 m
Ristoranti
90 m
Il Tunnel
100 m
Mostra tutto

Caratteristiche

Rif.:
61116909
Piano:
3 di 5 con ascensore (Piano medio)
Camere da letto:
1
Arredamento:
Completo
Condizionamento:
Autonomo
Ascensore:
Mostra tutto
Prezzo Prezzo
€ 2.250 / mese
Spese annue Spese annue
€ 3.000

Classe Energetica

D
D
D
D
D
D
D
D
D
EP globale non rinnovabile:
100.02 kW h/m² anno
EP globale rinnovabile:
2.82 kW h/m² anno
EP invernale del fabbricato:
EP estiva del fabbricato:
Anno di costruzione:
1900
Riscaldamento:
Autonomo
Tipo impianto:
A radiatori
Tipo alimentazione:
Metano

Ti interessa visionare l'immobile?

Fissa un appuntamento  Fissa un appuntamento

Richiedi informazioni

* Questi campi sono obbligatori
Affiliato
Immobiliare Mi.ca Sas
Via Canonica, 43 20149 Milano (MI)

Il nostro staff


  • Rosanna Catalano
    Coordinatrice

  • Flavio Giacalone
    Affiliato
Via Canonica, 43 20149 Milano (MI)
Zona: Arco della Pace
Mostra su mappa
Orari: lunedi -venerdi 9:00 - 13:00 e 14:30 - 20:00 sab 9:30 - 13 :00
Affiliato
Immobiliare Mi.ca Sas
Via Canonica, 43 20149 Milano (MI)

2025 Tecnocasa Franchising S.p.A. - P. IVA 08365160152 - Via Monte Bianco 60/A 20089 Rozzano (MI). Ogni agenzia ha un proprio titolare ed è autonoma. Privacy policy | Policy utilizzo | Cookie policy